Commenti: 0
Studio di Kim-oflage
Kim-oflage Fred Howarth

Nel corso della storia umana, mimetizzarsi è servito a garantire il successo nella caccia (o nella guerra).Vedere senza essere visti. Un qualcosa che è stato applicato sia nell'abbigliamento che nei rifugi. In effetti, sia la moda che l'interior design hanno preso ispirazione dal camouflage. Ad esempio, nello studio di Kim-oflage, situato in un giardino privato di Londra, sono state utilizzate piastrelle verdi per mimetizzarlo.

Kim-oflage
Kim-oflage Fred Howarth

Uno studio nascosto

Il progetto è stato sviluppato dallo studio Delve Architects, che ha utilizzato queste piastrelle smaltate verdi per mimetizzare l'esterno dello studio tra gli alberi del giardino. Il nome del progetto, Kim-oflage, è una curiosa combinazione dei nomi dei clienti, Kit e Imogen, e della parola camouflage.

Kim-oflage
Kim-oflage Fred Howarth

Lo studio si estende su 25 metri quadrati, che si aggiungono a una terrazza vittoriana a Nunhead, già ampliata dallo studio stesso nel 2020. In questa occasione, viene nuovamente imitata la forma del primo ampliamento, ma il rivestimento è stato completamente modificato. Se nel 2020 era realizzato in legno nero, questa volta sono piastrelle verdi lucide e infissi delle finestre verde scuro.

Kim-oflage
Kim-oflage Fred Howarth

Tenendo presente ciò, si è prestata attenzione affinché il nuovo edificio non invadesse eccessivamente questo spazio esterno. Lo studio ha spiegato: "Data la ristrettezza e la limitatezza del sito in fondo al giardino, con vicini su entrambi i lati, il nostro obiettivo era quello di ridurre la massa visiva con un tetto a due falde e una facciata rivestita di tegole verdi che si fondesse con il giardino".

Kim-oflage
Kim-oflage Fred Howarth

Per raggiungere questo obiettivo, è stato favorito un collegamento tra la casa stessa e il giardino. In questo modo è stata realizzata una vera e propria fusione con l'ambiente circostante ed è stato creato un ambiente piacevole per il lavoro, il relax e il tempo libero. Lo studio è progettato "per essere vissuto sia all'interno che all'esterno, e la sua presenza nel giardino si rivela gradualmente a mano a mano che ci si avvicina, creando una perla nascosta sul retro del giardino", commentano Delve Architects.

Due spazi diversi

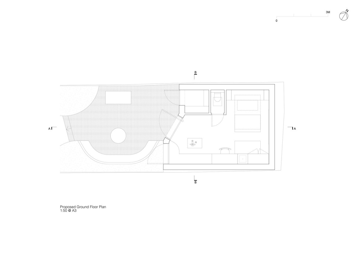
Nonostante le dimensioni ridotte (appena 25 metri quadrati), l'interno dello studio è diviso in due aree. La zona posteriore, illuminata da due lucernari, ospita una scrivania e un letto pieghevole per gli ospiti; mentre nella parte anteriore c'è una cucina a pianta aperta e una finestra che si affaccia su un patio pavimentato in mattoni, al quale si accede tramite una grande porta a vetri.

Kim-oflage
La piantina Fred Howarth

Per differenziare le due aree, lo studio ha utilizzato finiture murali leggermente contrastanti. Per questo motivo, le pareti della zona lavoro e della camera da letto sono state dipinte di bianco, mentre quella della cucina è intonacata di un rosa pallido.

Oltre a questi due spazi distinti, sul lato nord dello studio si trovano un piccolo bagno e un ripostiglio, a cui si accede dal giardino attraverso una porta nascosta dalle piastrelle verdi.

Kim-oflage
Kim-oflage Fred Howarth

Secondo lo studio, lo spazio è sfruttato in modo ottimale: "Da vicino, si possono apprezzare le intelligenti idee salvaspazio, come lo spazio nascosto in giardino e il letto a scomparsa, che mantengono l'estetica pulita e pratica dello studio".

Segui tutte le notizie del settore immobiliare rimanendo aggiornato tramite la nostra newsletter quotidiana e settimanale. Puoi anche restare aggiornato sul mercato immobiliare di lusso con il nostro bollettino mensile dedicato al tema.

Vedi i commenti (0) / Commento

per commentare devi effettuare il login con il tuo account