Commenti: 0

Arcore non è solo la lussuosissima villa San Martino, proprietà dell'ex premier Silvio Berlusconi. I nostri amici di cocontest, la piattaforma di crowdsourcing dedicata all'architettura e all'intern design, ci presentano infatti 12 progetti per ristrutturare una villetta di tre piani ubicata proprio  nel comune lombardo

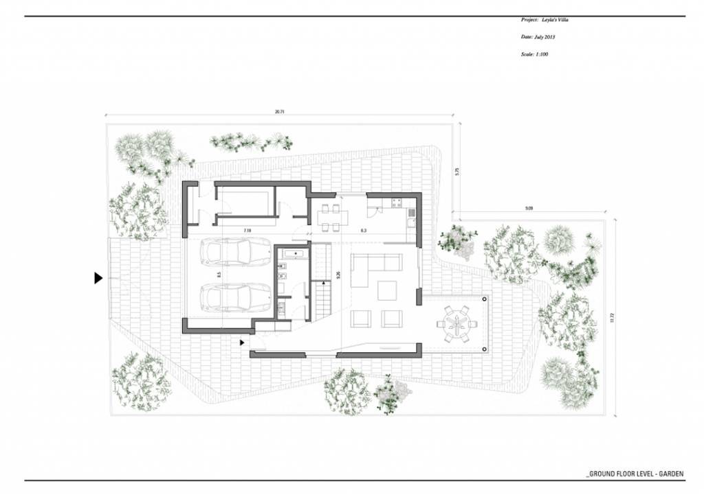
Il contest di questa settimana riguarda la ristrutturazione totale di una villa ad Arcore, tranquilli non si tratta di villa san martino lussuosissima residenza del ex presidente berlusconi, bensì di villa leyla una splendida villetta a tre piani che aveva bisogno di un intervento radicale di ristrutturazione. La villa era molto vecchia e l’accumularsi dei problemi nel tempo aveva reso necessario un intervento di rimodernamento complessivo dell’intero edificio

Nel descrivere cosa voleva ottenere dagli architetti partecipanti il committente ha richiesto che il piano terra potesse includere una grande salone connesso alla cucina e un secondo ingresso di servizio collegato al garage. Mentre gli altri due piani dovevano essere dedicati alla zona notte comprensiva di quattro camere da letto, una stanza dei giochi per i bambini ed uno studio dove poter lavorare da casa. Infine l’ultimo piano doveva ospitare un grande terrazzo che permettesse di prendere il sole e all’occorrenza di cenare all’aperto con gli amici

Con un budget estremamente ridotto il proprietario della villa ha ottenuto ben 12 diversi progetti completi ed immediatamente esecutivi, da cui ha potuto trarre utili suggestioni anche per l’arredo degli interni

Il progetto vincente è stato realizzato dallo studio di architettura m2b, che non solo ha perfettamente esaudito le richieste del proprietario, ma ha anche realizzato molti render di alta qualità arricchiti da consigli sull’arredo particolarmente apprezzati dal committente

Come ristrutturare la tua villa ad Arcore se non sei Berlusconi (fotogallery)

Come ristrutturare la tua villa ad Arcore se non sei Berlusconi (fotogallery)

Come ristrutturare la tua villa ad Arcore se non sei Berlusconi (fotogallery)

Il progetto classificatosi secondo, proposto dall’architetto parigino cb studio, evidenzia una grande attenzione per i dettagli d’arredo e una disposizione degli spazi interni al contempo creativa ed estremamente funzionale

Come ristrutturare la tua villa ad Arcore se non sei Berlusconi (fotogallery)

Come ristrutturare la tua villa ad Arcore se non sei Berlusconi (fotogallery)

Occorre infine fare un accenno al progetto classificatosi come terzo e realizzato dallo studio di.ada architects, che unisce un concept fresco ed elegante ma non eccessivamente dispendioso a delle immagini 3d esteremamente esplicative, in grado di dare al proprietario un idea precisa di come sarebbe potuta venire la villa una volta realizzato il progetto

Come ristrutturare la tua villa ad Arcore se non sei Berlusconi (fotogallery)

Come ristrutturare la tua villa ad Arcore se non sei Berlusconi (fotogallery)

 I contest precedenti

25 idee per rinnovare un appartamento antico

7 idee per rinnovare un monolocale spendendo poco

Come rinnovare il vostro ufficio con un budget limitato

Immagina come potrebbe cambiare la tua casa grazie al 3d

Come trasformare la cucina e trasformarla in una zona di relax

8 consigli per cambiare il soggiorno

12 idee per rinnovare un appartamento con tocchi di deisgn

20 idee per arredare un appartamento per studenti spendendo poco (fotogallery)

22 progetti per cambiare completamente il volto di una casa (fotogallery)

8 progetti per arredare il soggiorno

Come rifarsi casa con 200 euro

Nella fotogallery gli altri progetti che hanno partecipato al contest

Vedi i commenti (0) / Commento

per commentare devi effettuare il login con il tuo account