Commenti: 1

Anche uno spazio inutilizzato o la tipica stanza- ripostiglio con pochi e semplici interventi può diventare un ambiente accogliente dove rilassarsi guardando la tv o ascoltando musica. I nostri amici della piattaforma di interior design cocontest ci propongono 13 semplici progetti per trasformare un vecchio garage in una zona relax

Oggi vi raccontiamo la storia di Davide un giovane ragazzo di Roma che insieme i suoi amici ha trovato una soluzione semplice ed economica per migliorare e sfruttare un grande garage inutilizzato di sua proprietà. Non avendo infatti la macchina da parcheggiare all’interno del garage di 30 metri quadri oramai diventato deposito per scatole e roba vecchia (come si può vedere dalla foto) Davide ha deciso di cercare una soluzione progettuale nuova per il suo spazio su cocontest

13 semplici modi per trasformare un ambiente della casa inutilizzato (fotogallery)

Come tante altre persone ha lanciato una gara sulla piattaforma di interior design cocontest richiedendo di trasformare il suo vecchio garage in una zona relax dove poter invitare qualche amico a vedere la tv o ascoltare un po di musica e semmai fare una partita su un tavolo da ping pong molto in stile americano

La gara ha riscosso un ottimo successo, infatti il cliente è riuscito ad ottenere diverse soluzioni progettuali premiando quella che rispondeva di più alle sue esigenze, la scelta non è stata facile avendo ricevuto tredici diverse proposte  alcune davvero interessanti

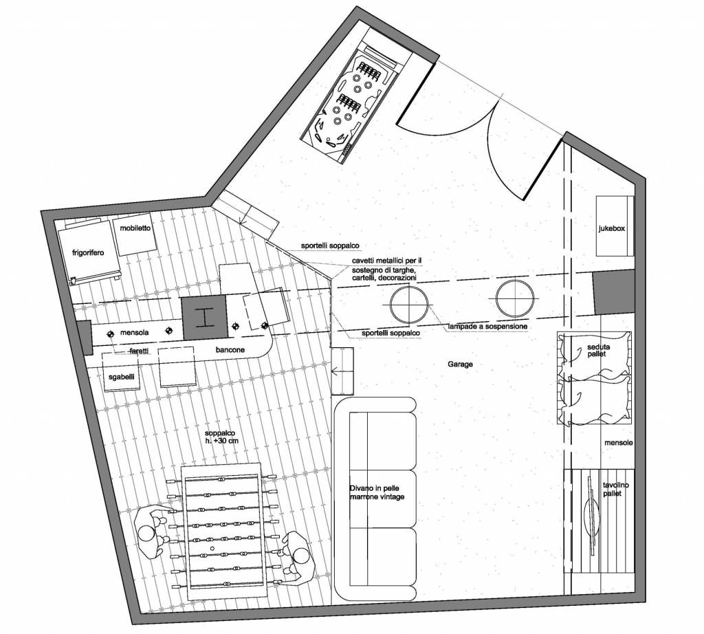
Un’altra cosa interessante di questo contest  è stato il fatto che il cliente pur non avendo la pianta del garage da mostrare ai designer è riuscito lo stesso a fornire una pianta accurata con le misure grazie ad all’innovativa app iphone: magicplan, partner commerciale di cocontest con il quale fotografando gli angoli di una stanza è possibile creare automaticamente una pianta con misure dello spazio fotografato

Il progetto  che è stato scelto dal cliente come vincitore è quello dell’architetto spagnolo Alvaro Llaveria Sanchez

13 semplici modi per trasformare un ambiente della casa inutilizzato (fotogallery)

13 semplici modi per trasformare un ambiente della casa inutilizzato (fotogallery)

Si è classificato secondo invece l’architetto Franco Lucifora che ha proposto una soluzione molto elegante creando un ambiente piacevole arricchito da arredi di design

13 semplici modi per trasformare un ambiente della casa inutilizzato (fotogallery)

13 semplici modi per trasformare un ambiente della casa inutilizzato (fotogallery)

Infine merita di essere menzionato anche il progetto dell’architetto Stefano Lanciani che ha scelto un arredo molto ricercato come oggetti usati o riciclati perfetti per un ambiente informale come questo

13 semplici modi per trasformare un ambiente della casa inutilizzato (fotogallery)

13 semplici modi per trasformare un ambiente della casa inutilizzato (fotogallery)
Vedi i commenti (1) / Commento

1 Commenti:

26 Settembre 2013, 11:53

Tutte soluzioni gradevoli a seconda del gusto e della disponibilità economica.
COMPLIMENTI.

per commentare devi effettuare il login con il tuo account