Commenti: 2

Trovare la soluzione migliore per il nostro appartamento  molte delle volte è una sfida affascinante, soprattutto quando si tratta di piccoli appartamenti in cui bisogna cercare di ottimizzare al meglio lo spazio a disposizione. I nostri collaboratori di cocontest vi presentano 7 innovative idee per rinnovare il proprio monolocale spendendo poco

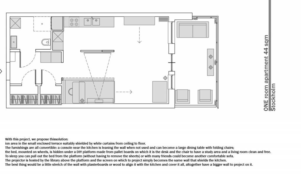
Oggi vi presentiamo un contest finalizzato proprio al rinnovamento di un appartamento di 44 mq in svezia 7 architetti e designer si sono sfidati sulla piattaforma di interior design cocontest (http://www.cocontest.com) a colpi di progetti per dimostrare come, spendendo poco, sia possibile ottenere delle ottime soluzioni per il proprio appartamento

Tra i tanti servizi che offrono progetti di interior design direttamente via web cocontest è l’unico che permette di ottenere tante diverse idee progettuali ad un prezzo davvero conveniente, ed è proprio ciò che è successo anche in questo caso in cui il cliente svedese con una cifra abbordabile ha ricevuto 7 progetti di ottima qualità in soli 7 giorni, completi di preventivo di renders e di suggerimenti riguardo l’arredamento da acquistare

L’obbiettivo del cliente era proprio quello di arredare e decorare l’appartamento con uno stile pulito ma non troppo sterile che riprendesse il design zen o scandinavo.  I progetti ricevuto hanno risposto appieno alle aspettative del cliente

Questi sono alcuni dei progetti ricevuti:

Il primo progetto è dell’architetto miriam gatti la quale ha realizzato un ambiente elegante ed accogliente, inoltre il progetto è molto accurato nei dettagli pronto per essere realizzato

7 idee per rinnovare un monolocale spendendo poco (fotogallery)

7 idee per rinnovare un monolocale spendendo poco (fotogallery)

7 idee per rinnovare un monolocale spendendo poco (fotogallery)
 

Il secondo progetto è invece del designer Alessandra sansone che ha realizzato un progetto molto bello pieno di colori grazie anche all’inserimento di fiori e piante

7 idee per rinnovare un monolocale spendendo poco (fotogallery)

7 idee per rinnovare un monolocale spendendo poco (fotogallery)

Infine il progetto dell’architetto Matteo speri che ha utilizzato un arredamento molto elegante trovando una soluzione molto interessante per il balcone

7 idee per rinnovare un monolocale spendendo poco (fotogallery)

7 idee per rinnovare un monolocale spendendo poco (fotogallery)

 I contest precedenti

Come rinnovare il vostro ufficio con un budget limitato

Immagina come potrebbe cambiare la tua casa grazie al 3d

Come trasformare la cucina e trasformarla in una zona di relax

8 consigli per cambiare il soggiorno

12 idee per rinnovare un appartamento con tocchi di deisgn

20 idee per arredare un appartamento per studenti spendendo poco (fotogallery)

22 progetti per cambiare completamente il volto di una casa (fotogallery)

8 progetti per arredare il soggiorno

Come rifarsi casa con 200 euro

Vedi i commenti (2) / Commento

2 Commenti:

2 Agosto 2013, 16:54

Ho visto , sono belli in particolare il secondo. Ammettiamo che chi ci abita , è un gran signore , non ha un bagno , forse va dai frati ? non si veste ? non ci sono armadi , scusatemi l'idiozi , ma un minimo ci deve essere . È come costruire , si fa per dire , in 30 mq 8 stanze . Sempre senza bagno , senza armadi , senza lavatrice . Tutti ricconi che usano i locali da 40 mq per incontri galanti ? non so sono belli , ma non funzionali .

9 Ottobre 2013, 15:39

In reply to by anonimo (not verified)

Se guardi bene, nella pianta c'è il bagno....non hanno messo le immagini di tutti gli ambienti, molto semplicemente

per commentare devi effettuare il login con il tuo account