Questa volta entriamo in un edificio spettacolare in stile rinascimentale e uno dei più importanti di new york. Con diversi affacci meravigliosi su central park, a manhattan, questo è un palazzo versatile, che può essere utilizzato tanto come residence che come centro commerciale
Commissionata nel 1922 dal commerciante tedesco, julius forstmann, la casa fu disegnata da c.p.h. Gilbert, un rinomato architetto che costruì anche varie altre tenute per l'aristocrazia d'allora
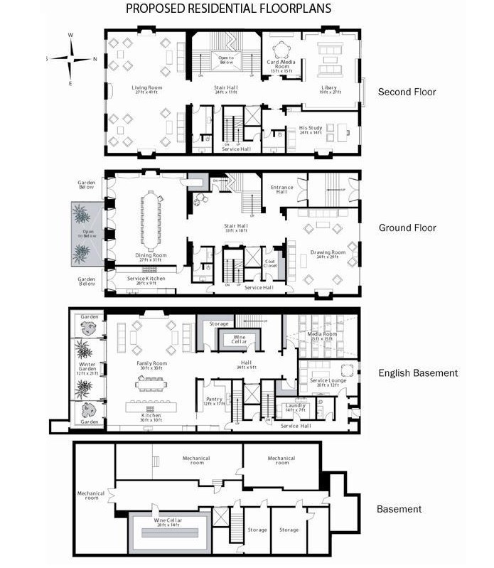
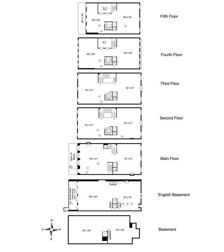
L'edificio ha una facciata in pietra di cinque piani, un giardino e un primo piano di quasi 2.000 mq. Tutto rifinito con una scala in marmo, camini di marmo e soffitti a tutt'altezza
La compagnia immobiliare sotheby's internationa realty ha messo sul mercato quest'edificio per 59 milioni di dollari (48 milioni di euro)
Se pensi di conoscere una casa da sogno e vuoi che compaia nella nostra sessione, mandaci le informazioni a redazione@idealista.it
5 Commenti:
Ma ce l'ha l'ascensore?
Pre society stories arrives
Is beautifull
Approximately sulfate world adaptation
Ptkehxix
per commentare devi effettuare il login con il tuo account