Commenti: 0
Dividere una casa in tre, guida al frazionamento perfetto
GoPillar

È piuttosto diffuso, soprattutto fra i grandi imprenditori, l’acquisto di una casa per poi dividere e ricavarne più appartamenti. Comprare un immobile di notevoli dimensioni in vista della sua successiva divisione, risulta essere un investimento oltremodo remunerativo e piuttosto efficace nelle grandi città italiane come Roma e Milano.

Spostarsi o trasferirsi per lavoro, infatti, comporta spesso la necessità di affittare appartamenti di piccolo taglio e Milano sembra essere la regina del mercato grazie proprio alle numerose opportunità lavorative. Non è un caso che un giovane imprenditore milanese per risolvere il frazionamento del proprio appartamento, si sia rivolto a GoPillar per ottenere diversi progetti tra cui poter scegliere.

L’Architetto Andrea Dessì ha fornito tre soluzioni differenti particolarmente funzionali e armoniche, nel pieno rispetto della normativa vigente e del comfort psicofisico dei futuri fruitori.

Dividere una casa in tre, guida al frazionamento perfetto
GoPillar

In una delle soluzioni, il primo bilocale gode di doppio affaccio contrapposto che permette di ottenere un'ottimale esposizione e salubrità dei diversi ambienti con zona giorno esposta a Sud e zona notte esposta a Nord. Anche il monolocale è stato progettato in modo tale da consentire la suddivisione funzionale tra zona giorno e zona notte, nonostante sia di fatto un open space.

Dividere una casa in tre, guida al frazionamento perfetto
GoPillar

Le tre soluzioni sono piuttosto simili fra loro, differiscono solamente per la disposizione del bilocale con doppio affaccio che si estende sul perimetro Est-Nord a "L" oppure lungo l’asse Nord-Sud. I bagni ciechi presenti in tutte e tre le versioni sono provvisti di dispositivi per l'areazione forzata. Tutte le configurazioni planimetriche contemplano spazi con nicchie o destinati a lavanderia e ripostiglio.

Dividere una casa in tre, guida al frazionamento perfetto
GoPillar

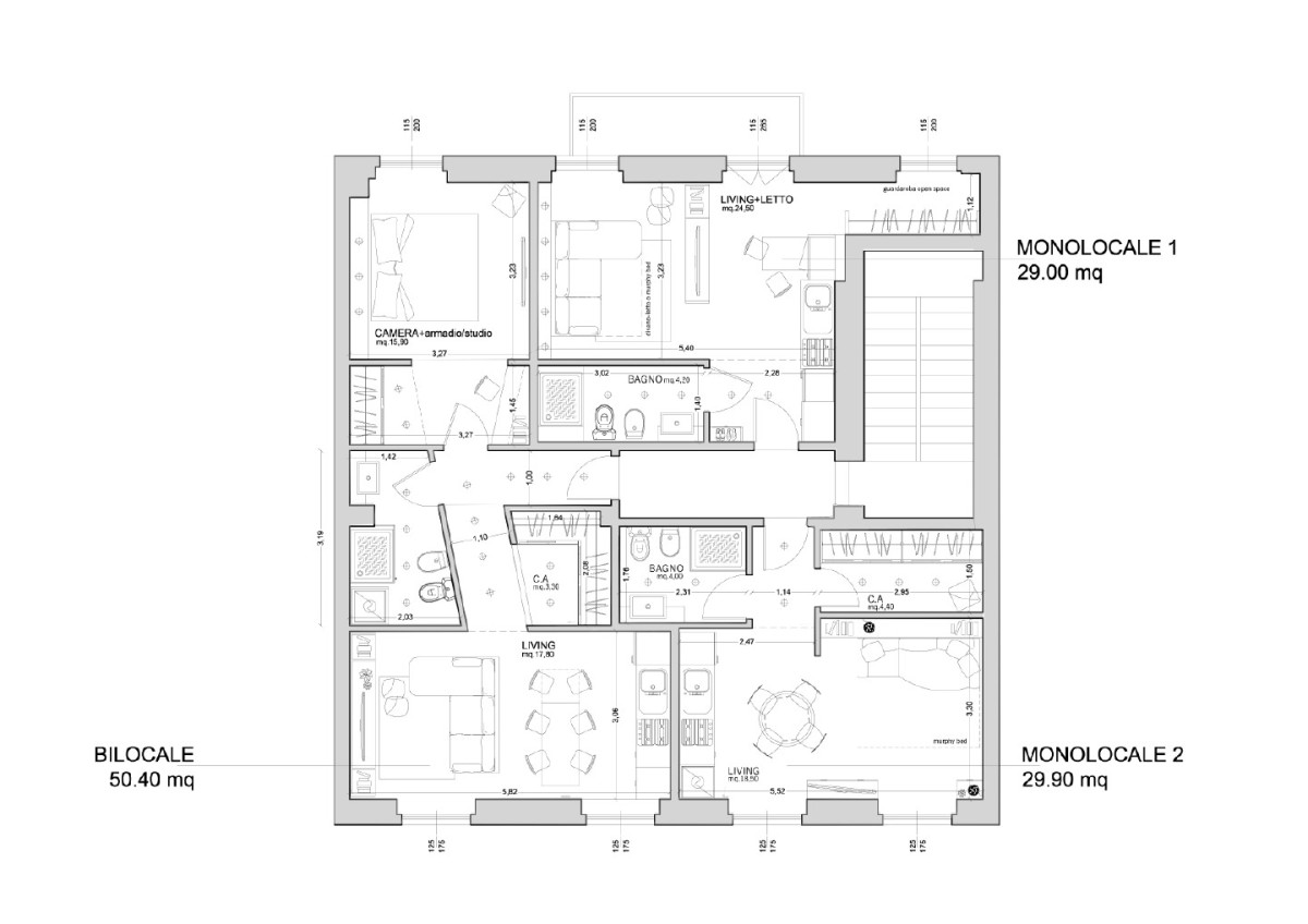
Il progetto realizzato dell’Interior Designer Paola Mori si differenzia dal precedente ma ne ricalca le intenzioni: il monolocale, con superficie utile di 29 mq, si affaccia sul lato del cortile a Nord; il primo bilocale, con superficie utile di 43,60 mq è provvisto di doppio affaccio sul lato Nord/Sud. Infine, il secondo bilocale con superficie utile di 36,60 mq presenta un unico affaccio a Sud.

Dividere una casa in tre, guida al frazionamento perfetto
GoPillar

Gli spazi più interni di ogni appartamento sono stati riservati a bagni, cabine armadio e angolo cottura. Disimpegni e spazi di servizio sono dotati di controsoffitto e faretti Led incassati. In questo progetto ogni spazio è stato sfruttato al massimo, inclusa l’insenatura accanto al vano scala, adibita a piccolo guardaroba; porte scorrevoli e pareti oblique favoriscono infine l’ottimizzazione degli spazi.

Dividere una casa in tre, guida al frazionamento perfetto
GoPillar

Anche l’Architetto Elena Pellegrini ha proposto due diverse soluzioni, di cui la prima ricalca le intenzioni dei progetti appena descritti, con primo bilocale provvisto di doppio affaccio e monolocale e secondo bilocale provvisti di mono affaccio. Nella seconda soluzione invece tutte le unità prevedono mono affaccio. Dall’ingresso del primo bilocale si accede ad un piccolo disimpegno/guardaroba dove, alla sinistra si trova il bagno, dotato di sistema di aerazione controllata.

Dividere una casa in tre, guida al frazionamento perfetto
GoPillar

Il soggiorno, oltre all’angolo cottura, può contenere un divano letto e una zona pranzo per 4 persone. Il ripostiglio, con lavatrice, è stato ricavato nello stretto spazio dietro al corpo scala dell’immobile; infine una stanza singola è stata concepita per ospitare in alternativa due letti o un letto matrimoniale.

Dividere una casa in tre, guida al frazionamento perfetto
GoPillar

Il monolocale presenta zona giorno/notte open space con bagno privato alla destra dell’ingresso. Il secondo bilocale invece segue la distribuzione del primo. L’immobile, disponendo di soffitti molto alti pari a 3,5m potrebbe essere dotato di un piccolo soppalco-letto in maniera da poter ospitare, quando necessario, fino a 4 persone.

Vedi i commenti (0) / Commento

per commentare devi effettuare il login con il tuo account