The Chapel è un progetto dello studio rumeno Vinklu per la catena locale Boiler Coffee
Commenti: 0
The Chapel
The Chapel Vlad Patru

Le principali città europee sono piene di vuoti, angoli trascurati e spazi angusti che, per decenni, sono stati considerati inutili per l'architettura. Ma tutto questo sta cambiando, ora anche gli interstizi urbani possono essere trasformati in spazi con una propria identità distinta.

Da Tokyo ad Amsterdam, l'architettura in miniatura è diventata un laboratorio per esplorare materiali, atmosfere e modi di convivere in contesti estremamente densi. Bucarest si unisce a questa tendenza con un piccolo edificio che sfrutta al meglio ogni millimetro di vuoto residuo tra due edifici residenziali.

Stiamo parlando di The Chapel, una caffetteria progettata dallo studio rumeno Vinklu per la catena locale Boiler Coffee, che trasforma uno spazio precedentemente ignorato tra i muri divisori in un rifugio caldo e luminoso dove gustare un caffè.

The Chapel
The Chapel Vlad Patru

Uno “spazio sacro”

La caffetteria si trova in una piccola nicchia in via Bazilescu, nel primo distretto di Bucarest. Lo spazio limitato si è rivelato un vantaggio, poiché il progetto ha ricercato un'estetica che ricordasse i santuari rurali giapponesi lungo le strade, caratterizzati dalla loro semplicità formale e dal forte significato simbolico.

Come afferma lo studio stesso, "la prima visita al sito con i miei cari clienti e amici di Boiler Coffee è avvenuta più di un anno fa e il brief di progetto che abbiamo discusso era semplicemente quello di cercare di adattare quello spazio a qualcosa che potesse essere un caffè".

The Chapel
Vlad Patru

Fin dall'inizio, era chiaro che il progetto dovesse essere più di un semplice volume funzionale. L'intenzione non era quella di creare un altro "contenitore", ma piuttosto "che il suo significato si estendesse oltre la sua funzionalità o apparenza".

Per questo motivo, la struttura adotta una forma inclinata e arcaica che cattura l'attenzione anche in un contesto residenziale. Le estremità completamente vetrate permettono alla caffetteria di essere illuminata come una lanterna al calar della notte, rafforzando l'idea di un rifugio per la contemplazione.

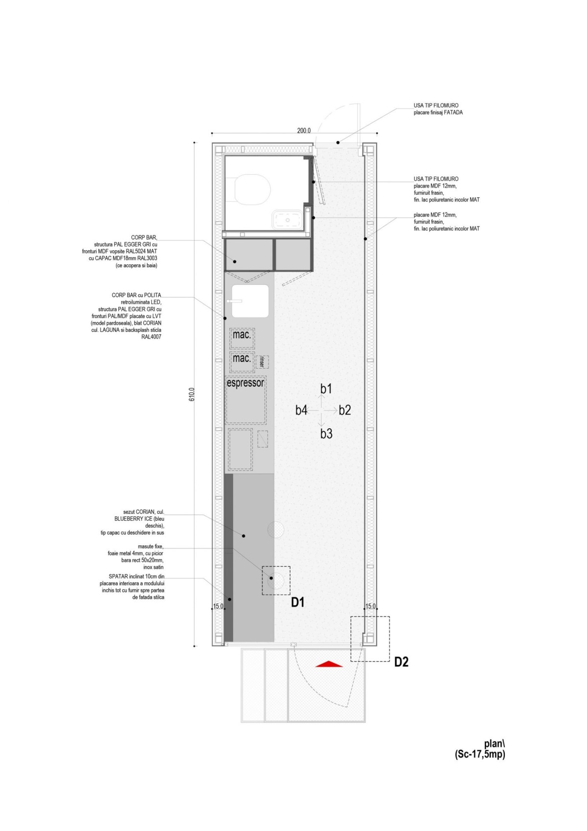
Per ridurre al minimo l'impatto in un'area densamente popolata, la struttura in acciaio è stata prefabbricata, consentendo un rapido montaggio in loco. La caffetteria è leggermente rialzata su gambe metalliche, questo crea una piccola soglia tra l'interno e il marciapiede. L'esterno è rivestito in lamiera ondulata, mentre l'interno utilizza pannelli impiallacciati in frassino che conferiscono un'atmosfera calda e artigianale.

The Chapel
Aperto sulla strada Vlad Patru

Un'estensione dello spazio pubblico

Il carattere pubblico di The Chapel è evidente fin dall'ingresso, progettato per dare l'impressione di essere un'estensione dello spazio pubblico. Tavoli all'aperto annunciano l'ingresso, mentre le porte in vetro permettono all'interno di aprirsi completamente sulla strada. La leggera elevazione dell'edificio rafforza questo senso di transizione, invitando i passanti a entrare quasi senza accorgersene.

The Chapel
Zona caffetteria Vlad Patru

A un'estremità dell'interno si trova la zona dedicata alla preparazione del caffè, integrata in un volume continuo che funge anche da bar, panca e spazio di stoccaggio.

Segui tutte le notizie del settore immobiliare rimanendo aggiornato tramite la nostra newsletter quotidiana e settimanale. Puoi anche restare aggiornato sul mercato immobiliare di lusso con il nostro bollettino mensile dedicato al tema.

Vedi i commenti (0) / Commento

per commentare devi effettuare il login con il tuo account