Commenti: 0
Venduta per 5,48 milioni di dollari la casa di Brooklyn di Mike D dei Beastie Boys (Fotogallery)
idealista/news
Brooklyn, New York
4,8 milioni di €
Musica
Vedi altre case di celebrità

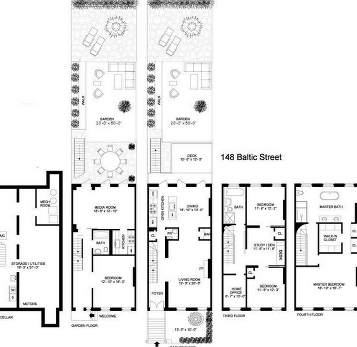
Messa sul mercato solo qualche mese fa a un prezzo pari a 5,65 milioni di dollari, la casa newyorkese di Michael Diamond, a.k.a. Mike D dei Beastie Boys, e della regista Tamra Davis è stata venduta a 5,48 milioni di dollari. La coppia ha venduto l’immobile a poco meno di quanto richiesto inizialmente.

La casa è stata completamente ristrutturata da Diamond e Davis e vanta alcuni elementi di design appositamente personalizzati dalla coppia. I due sono sposati dal 1993 e hanno due figli. Mike D è uno storico componente del gruppo hip hop statunitense dei Beastie Boys, che si è formato a New York nel 1979.

Vedi i commenti (0) / Commento

per commentare devi effettuare il login con il tuo account