Commenti: 0
Arredamento per la camera da letto
autorizado

La maggior parte delle nostre case ha come protagonista la zona living, che è solitamente la zona pubblica e di rappresentanza di un appartamento. Spesso viene trascurata l’importanza degli spazi privati che compongono la zona notte, come le camere da letto. Ecco alcune idee per dormire in un ambiente curato e confortevole.

Le camere da letto sono gli ambienti che ci accolgono nei momenti di relax, che raccolgono i nostri oggetti, i nostri ricordi, le nostre passioni, sono ambienti che meritano il giusto spazio e la giusta organizzazione per diventare delle piccole suite dotate di ogni comfort.

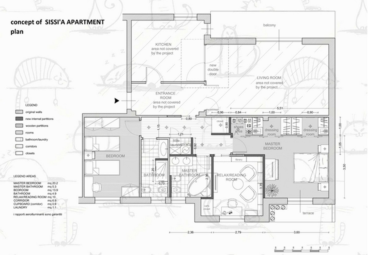
Per il contest “sissi’s apartment” è stato richiesto di riprogettare l’intera zona notte, compreso il corridoio di collegamento delle camere, e i due bagni. L’appartamento era composto da camera matrimoniale, uno studio e una camera per gli ospiti, più due bagni; la zona giorno era stata già ristrutturata in precedenza.

La cliente desiderava una grande camera da letto, con cabina armadio e zona relax, uno studio con zona lettura e scrivania, e una seconda camera da letto per una coppia.

Dei 24 progetti ricevuti la cliente ha selezionato il progetto di Davide Vernocchi, M&Z architect e Gerardo Bartiromo come preferiti.

Riprogettare la camera da letto
autorizado

Davide Vernocchi ha proposto una soluzione semplice ed efficace per ampliare le camere sfruttando lo spazio del corridoio. La proposta suggerisce l’apertura dello studio sul salotto, in modo da ingrandire la camera da letto e realizzare una cabina armadio in quello che in origine era il corridoio, ed una nuova disposizione dei sanitari nei due bagni.

Alcune idee per trasformare la zona notte in un ambiente confortevole e di classe(Foto)
autorizado

M&Z architect ha proposto una soluzione molto simile alla precedente con un'apertura decentrata dello studio sul salotto e senza apportare alcuna modifica alle pareti dei bagni e della seconda camera.

Alcune idee per trasformare la zona notte in un ambiente confortevole e di classe(Foto)
autorizado

Gerardo Bartiromo ha invece posizionato la camera matrimoniale in corrispondenza del balcone, e, spostando l’ingresso della camera, inserito  un sistema di tre cabine armadio che si estende nel corridoio per creare un piccolo ripostiglio; anche i bagni sono ripensati ritagliando all’interno del bagno più grande una piccola lavanderia che ha accesso sul corridoio, lo studio ha invece l’accesso accanto alla camera da letto ed è dotato di un'ulteriore zona tv con poltrone.

Vedi i commenti (0) / Commento

per commentare devi effettuare il login con il tuo account