Commenti: 0

Un tempo gli appartamenti venivano progettati e costruiti con una metratura molto grande che ad oggi risulta troppo ampia per gli standard moderni. Famiglie con sempre meno figli, la crisi economica o semplicemente la volontà di poter sfruttare al massimo le potenzialità dei loro spazi, spingono gli acquirenti di questi mega immobili a dividerli in più unità.

Alcune idee per dividere una casa in più unità
autorizado

Questa è stata la richiesta lanciata da una coppia di clienti su CoContest, la prima piattaforma 2.0 per concorsi di architettura e Interior design: avendo a disposizione un appartamento di circa 140 mq disposti al primo piano di una palazzina situata a Roma, volevano dividerlo in 2 alloggi più piccoli.

Alcune idee per dividere una casa in più unità
autorizado

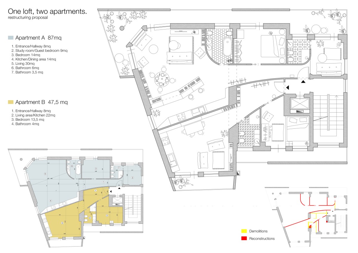
Ben 33 designer hanno inviato ai clienti il proprio progetto e fra tutti si è distinta l’idea di ManGaArchitects. L’intuizione geniale è stata quella di dividere lo spazio andandolo a sfruttare al massimo senza perdere superficie utile in (inutili) corridoi. La zona del vecchio ingresso in prossimità dell’ascensore è stata utilizzata per aprire i nuovi accessi dei due appartamenti. L’appartamento più piccolo di circa 45mq si sviluppa in lunghezza ed è esposto su 2 lati. Si accede tramite un ingresso che divide la zona giorno dalla zona notte: una stanza matrimoniale sulla destra e un salotto con una cucina open space, dietro il quale è stato ricavato un bagno cieco. L’appartamento più grande invece è esposto su 3 lati, maggior luce ovviamente deve entrare al suo interno per riscaldare uno spazio e andare così a generare un senso di armonia.

L’ingresso è stato sfruttato al massimo progettando delle pareti contenitori. Da qui si accede alla zona living: un continuum tra cucina, soggiorno e una stanza adibita a studio/camera ospiti. Quest’ultima ha la caratteristica di poter essere aperta o chiusa grazie alla presenza di grandi porte bilico, che chiuse all’occorrenza ne fanno una vera e propria stanza a sé stante. Per riproporre questo continuo tra le parti, i designer hanno usato un unico materiale in tutto l’appartamento: il legno che, impiegato nella pavimentazione a parquet, nelle ante della cucina, nella libreria/filtro dell’ingresso o nei listelli della camera da letto, con il suo calore, permette un’illuminazione ancora più accentuata in tutta la casa, che risulta in questo modo più accogliente.

La distribuzione degli spazi creata dai designer ManGaArchitects è stata vincente perché ha consentito di ottenere due appartamenti funzionali e semplici, entrambi ben illuminati e ventilati in modo naturale, tutti elementi non solo richiesti dal cliente ma anche essenziali per chi vi abita.

Alcune idee per dividere una casa in più unità
autorizado

Al secondo posto si classifica Emiliano Zandri che ha suddiviso il grande appartamento con una linea inclinata, quasi volesse dare equità alle due unità. Entrambi gli appartamenti presentano un filo conduttore di progettazione: la scoperta tramite un percorso del luogo abitativo. Dall’ingresso si arriva alla zona living, aperta e luminosa in entrambe le proposte. Nelle due unità immobiliari linee curve delimitano la zona notte: camere da letto matrimoniali e spaziosi bagni areati. Ciò che contraddistingue l’appartamento più grande è la presenza di una stanza che può essere adibita a diverse funzionalità: cameretta, camera ospiti o studio.

Alcune idee per dividere una casa in più unità
autorizado

Scelta senz'altro azzardata quella del designer Andrii Savchenko che si aggiudica comunque il 5 posto, nonostante non abbia accolto la richiesta del cliente: separare le abitazioni con ingresso indipendente. Di certo l’idea progettuale non è stata poi del tutto sbagliata: ha suddiviso l’appartamento in due più piccoli, ognuno dei quali ha la propria stanza da letto e il proprio bagno personale, ma la nota stilistica è stata quella di lasciare un grande Living come area comune. Questa è caratterizzata da una serie di infissi che sono modulabili e possono essere lasciati totalmente aperti o chiusi all’occorrenza. Insomma una scelta per chi ha voglia di un cambiamento ma che non vuole osare troppo.

Anche questa volta con CoContest la decisione del miglior progetto è stata ardua.

Vedi i commenti (0) / Commento

per commentare devi effettuare il login con il tuo account