Commenti: 0
Case dei vip: will smith ne affitta una per 19,5 mld di dollari per girare men in black lll (galleria)

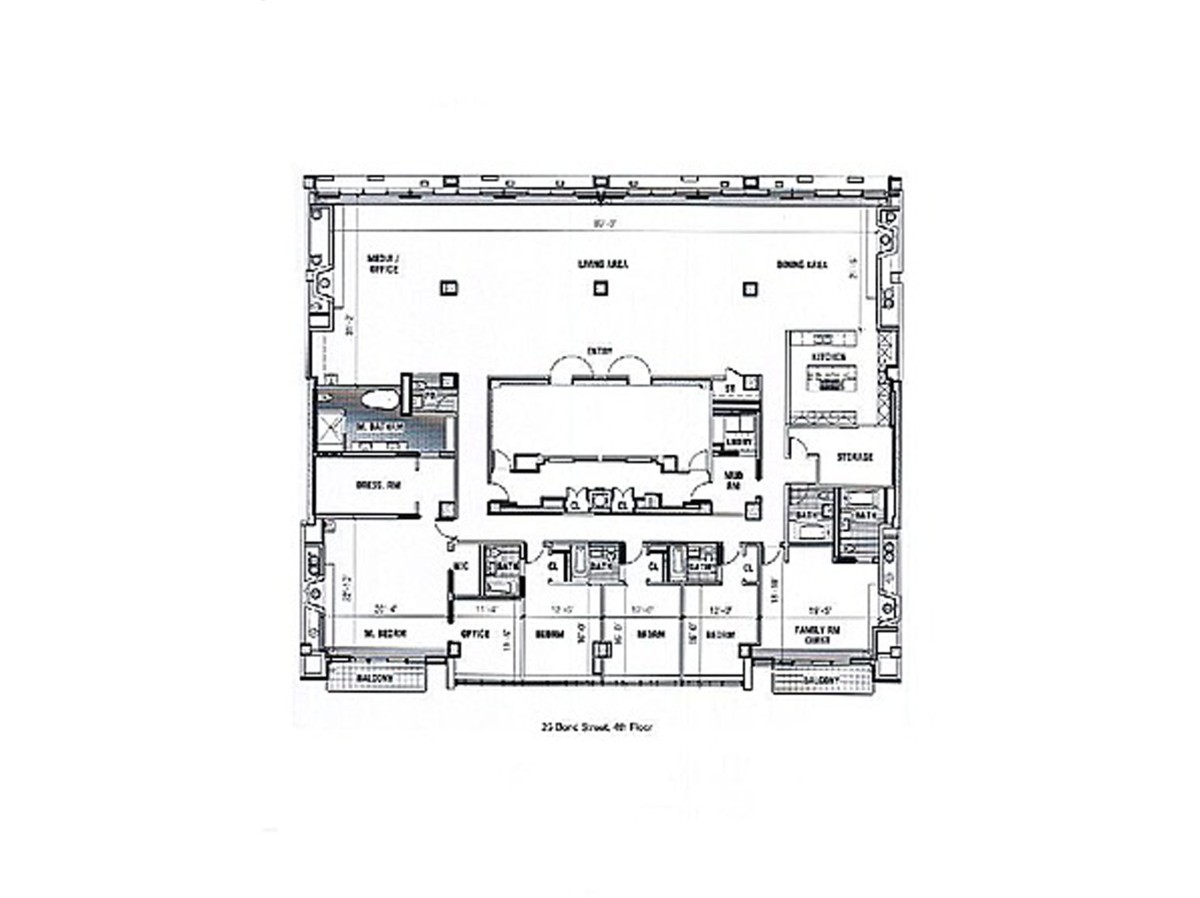
Durante le riprese di "men in black lll" will smith ha affittato temporaneamente questo appartamento di manhattan per 19,5 milioni di dollari. Secondo quando riferisce il new york post, l'attore, musicista e produttore avrebbe assoldato nel 2010 una professionista perché volasse per la east coast alla ricerca di una casa a new york, non solo lussuosa, ma anche adatta ad accogliere l'intera famiglia

La donna sarebbe tornata solo qualche ora dopo alla west coast con in mano il contratto d'affitto per questo appartamento al numero 25 di bond street, che si adatta molto bene alle esigenze dell'attore. Per quasi 20 milioni di dollari, infatti, la famiglia smith ha avuto a disposizione 730 mq di spazio abitabile, cinque camere da letto e 6 bagni. D'altronde è risaputo che Il mercato immobiliare di new york è abbastanza caro, ma l'attore, che in quel momento stava girando man in black lll non ha badato a spese

La casa, ora in vendita è commercializzata da ives micheal international di sotheby

Vedi i commenti (0) / Commento

per commentare devi effettuare il login con il tuo account