Commenti: 0
Case con pannelli solari
autorizado

Articolo scritto da Gorka Ramos (collaboratore di idealista news)

Si dice che non tutto il male viene per nuocere e l’uragano Katrina del 2005 ne è un esempio. Anche se non è facile trovare il lato positivo di quanto è accaduto con il passaggio del ciclone tropicale, bisogna ricordare che quell’evento ha dato vita a diverse iniziative per la ricostruzione, tra cui la nascita della fondazione “Make It Right”.

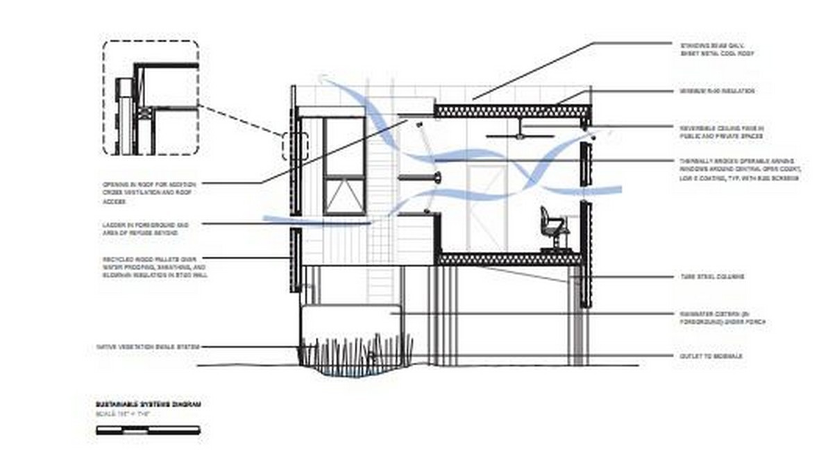
La fondazione, di cui è testimonial l’attore Brad Pitt, ha realizzato oltre 150 abitazioni sostenibili progettate da una ventina di architetti di fama internazionale, come Shigeru Ban, Frank Gehry, Kieran Timberlake, Hitoshi Abe y Morphosis. Questi architetti, oltre ad aiutare i bisognosi, hanno deciso di condividere i loro progetti.

Dopo 10 anni, il direttore di “Make It Right”, Tom Darden, ha fatto sapere che i progetti sono diventati accessibili al pubblico in modo gratuito. “Desideriamo condividere le nostre conoscenze – hanno spiegato dalla fondazione – i materiali che utilizziamo, i metodi di costruzione, le lezioni apprese, le recenti scoperte e i dati”.

Le case non sono proprio a buon mercato: il prezzo medio a metro quadro è di circa 960 euro. Ma l’elevata efficienza energetica (con certificato Leed Platinum) promette di compensare l’investimento iniziale. Ecco più di 20 progetti (gratuiti) per costruire case di design e sostenibili.

Adjaye Associates

Il progetto di una casa di design ecosostenibile
autorizado

Billes Architecture

Casa di design sostenibile
autorizado

BNIM

Casa sostenibile progettata da famosi architetti
autorizado

Concordia

Ecco più di 20 progetti (gratuiti) per costruire case sostenibili di design
autorizado

Constructs

Ecco più di 20 progetti (gratuiti) per costruire case sostenibili di design
autorizado

Eskew+Dumez+Ripple

Ecco più di 20 progetti (gratuiti) per costruire case sostenibili di design
autorizado

Graft

Ecco più di 20 progetti (gratuiti) per costruire case sostenibili di design
autorizado

Morphosis

Ecco più di 20 progetti (gratuiti) per costruire case sostenibili di design
autorizado

MVRDV

Ecco più di 20 progetti (gratuiti) per costruire case sostenibili di design
autorizado

Pugh + Scarpa

Ecco più di 20 progetti (gratuiti) per costruire case sostenibili di design
autorizado

Shigeru Ban Architects

Ecco più di 20 progetti (gratuiti) per costruire case sostenibili di design
autorizado

Trahan Architects

Ecco più di 20 progetti (gratuiti) per costruire case sostenibili di design
autorizado

Hitoshi Abe

Ecco più di 20 progetti (gratuiti) per costruire case sostenibili di design
autorizado

BILD

Ecco più di 20 progetti (gratuiti) per costruire case sostenibili di design
autorizado

Billes

Ecco più di 20 progetti (gratuiti) per costruire case sostenibili di design
autorizado

BNIM

Ecco più di 20 progetti (gratuiti) per costruire case sostenibili di design
autorizado

Building Studio

Ecco più di 20 progetti (gratuiti) per costruire case sostenibili di design
autorizado

Elemental

Ecco più di 20 progetti (gratuiti) per costruire case sostenibili di design
autorizado

Gehry and Partners

Ecco più di 20 progetti (gratuiti) per costruire case sostenibili di design
autorizado

Graft

Ecco più di 20 progetti (gratuiti) per costruire case sostenibili di design
autorizado

Ray Kappe

Ecco più di 20 progetti (gratuiti) per costruire case sostenibili di design
autorizado

Waggonner and Ball

Ecco più di 20 progetti (gratuiti) per costruire case sostenibili di design
autorizado

William McDonough + Partners

Ecco più di 20 progetti (gratuiti) per costruire case sostenibili di design
autorizado
Vedi i commenti (0) / Commento

per commentare devi effettuare il login con il tuo account